It’s not just about parking for residents, it’s about access for removals vans, deliveries, minicabs, visitors in cars, emergency vehicles etc. If you have a removals lorry, and a John Lewis delivery, and a parcel delivery, they can’t park on double red lines.
The PDF from further above shows vehicle access including the ability to do a turn on site.
If all those vehicles mentioned are to turn up at the same time, then it shouldn’t be a surprise why London has a traffic problem. Emergency vehicles, as their name suggests, should not have to worry about double red lines. It’s a very tricky site to work with from an access perspective. I think they found a good compromise.
I have gotten in contact with the developers and enquired about the impact of the distinct lack of parking arrangements, and unfortunately haven’t received anything particularly reassuring about how they plan to solve the potential problem of traffic or parking congestion in the area. This hasnt filled me with the most confidence on the development
The developer is only interested in extracting the maximum profit and moving on.
You should make the FHSoc aware of your concerns as they’re the ones who usually make the planning department aware of these things on our behalf.
Unfortunately, in this case though, the site has already got a long-standing established vehicular access in and out of the site (e.g for commercial vehicle deliveries) and government planning guidelines positively encourage residential developments with no parking that are built near good public transport links, such as in this instance.
You shouldn’t rely solely on the FHS who may or may not agree with your views. the planning process allows for all to participate.
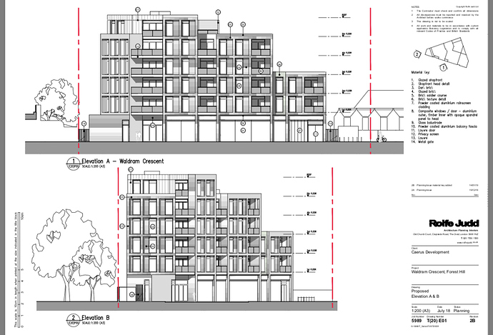
So just to state the obvious… flats above commercial now, rather than a hotel? I wonder why that changed…
I don’t believe this particular one was ever a hotel. Are you mixing it up with the CoOp plans?
Everyone loves a balcony looking out over the South Circular.
Yep. Was always a residential development with some commercial mixed in.
Ah that I am - thanks!
Also ideal for train spotting, at the rear.
Local residents received letters from Lewisham Planning about these plans today
Lots of people objected to the Co-op redevelopment, they held a local meeting in Sunderland Road and only 2 local residents turned up, including myself. My complaint being over the lack of disabled parking, at the planning meeting, I was the only person who turned up objecting to the development in it current form and armed with additional facts, like the one disabled space, what happens if they have a disabled employee?
Its very well objecting and complaining on here, but you have to go to the council meetings and make your voice heard.
Not getting a parking permit and not owning a car are totally different, they will park in Stanstead Road or in the bays the opposite of the Fish & Chip shop.
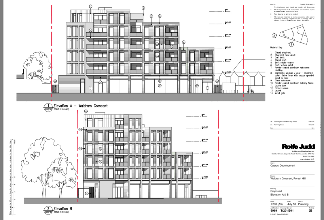
I think these pictures look nice - I hope they get planning permission. God know anything is better than the piece of tarmac and a couple of portacabins there at the minute.
Planning meetings work like this, subject addressed, the developer puts their side then objectors put their side and the council decides. If the developer never turned up it would probably be refused. Had the hotel had adequate car parking it would have been less of an issue.
The thoughts of City workers staying in the hotel and going to work by train might work, but will they not drive to the hotel to start with. Not sure how much Holiday Inn Express charge per night (that what it will be) but you can get a double room in a Novotel for £90, 2 minutes walk from Canary Wharf.
I’m sorry the outcome wasn’t what you’d hoped for.
From my understanding, the planning office takes all the written recommendations in account before a decision is made. Sometimes, that decision is referred to a planning committee (as in this case) for final approval. Councillors on the planning committee receive a summary and the presenting/case officer will present the summary, including a summary of objections to the meeting. Councillors ask questions, then a representative of the applicant may speak followed by a representative for the objectors. If a development directly affects you, then it is important to be there in person or ensure a representative for you and other objectors does the job.
We had made objections to proposal in a neighbouring property back in November. The recommendation was for approval. But our verbal representation ensured a number of conditions were added which satisfied our specific complaint. If we had not gone in person the proposal would have passed unhindered.
I know this doesn’t help you now. But I add this more as a cautionary tale. If people directly affected by a proposal object, and it goes to committee then ensure at least one of you can attend to represent your concerns.
On our visit the PA system barely worked. Perhaps BBC Question Time will have sorted that out for them last week.
The planning process is not easy if people find a hour to actually attend a meeting. When they held the open informal meeting in Sunderland Road was held and only 2 objectors turned up it tells the planners what the real opposition is. Its embarrassing when the architect, site owner, traffic study, local community liaison (who lives in Colliers Wood) and a local Councillor turns up it shows real opposition, you would never convince me that all objectors were working late or single mothers. I am disabled and I managed to make both meetings. If I could make them, then I am sure others could.



