Does the plan say what would happen to the doctors’ surgery if that work were to go ahead?
It says this on page 27 of 53 in the PDF:

Do you know if
re-provision of health facilities
means it will be provided within the development, or must be provided elsewhere? Am assuming if this did go ahead at some point Jenner would need to close during the works at least, and therefore might move completely, though I hope not as:
a) it’s near me!
b) it’s at the junction of quite a few bus routes (122, 171, 185) which cover a good local range.
c) it’s right next to a pharmacy which is handy.
I can’t see how they can redevelop the whole site without the Jenner having to move elsewhere even if they say it’s only “temporarily”!
When I first moved to Forest Hill over 30 years ago and needed to register with a doctor the Jenner didn’t have a great reputation with any of my new neighbours and the Vale didn’t exist so on their recommendation I registered with Perry Hill Surgery which was in the large detached house that is now Grace’s Day Nursery opposite the Houston Road junction (I was younger and fitter then so thought nothing of the 15-20 minute walk from Sunderland Road!). However quite a few years later the surgery advised they were having to relocate and would be moving into a brand new medical centre that was being included in the St Georges Church development on Woolstone Road. However as a temporary measure the surgery was moved to a portacabin in the grounds of Livesey Memorial Hall! This was ok but could be a bit chilly in the winter but if I remember rightly it took 7 years for the permanent surgery to be ready and become what is now Woolstone Medical Centre.
I’ve twice been a patient at a doctor’s surgery where redevelopment had happened. In both cases we ended up with a vastly superior surgery. Here’s hoping for the same.
That’s exciting! Looks like it took a while, almost 2 years and still not done, but that parade is really coming along.
Their website is here:
And 30 years later it’s still terrible. Though not as bad as the chemist next. Incompetent twits the lot of them!
The place next to ArtDog (the old William Hill) has been painted a deep green and filled with houseplants over the weekend, so something new must be coming soon:
Apparently it’s going to be a plant and coffee shop opening on 28th May
Ohh, is that going to be the one there was the survey for previously I wonder: Premises next to Clapton Craft? - #32 by christina_1
I hope they do cut flowers. Certainly coming to life this row of shops.
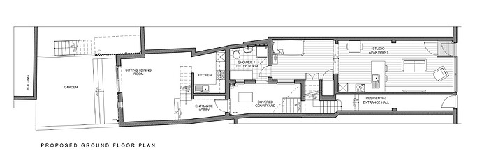
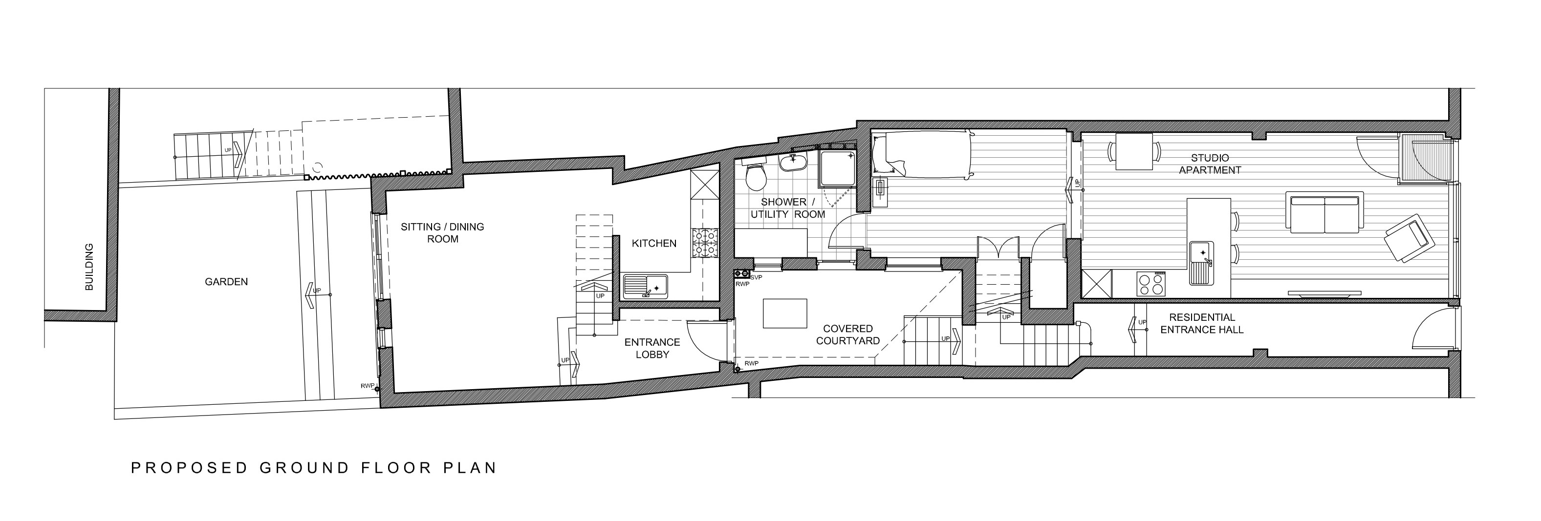
There certainly is a lot differently happening along there. Number 15 - the old Iceni Music Shop - also has a planning application (DC/21/121146) to change the use of the ground floor to add a new flat / maisonette.
I can’t tell from the documents, are they replacing the shop with the flat? It describes the existing rooms as an office rather than a shop, so perhaps not, but then the diagrams don’t show that there would still be shop space in front of the flat…
The before and after plans definitely show the ‘ground floor’ ‘office space’ changing to a tiny ‘studio apartment’ of 44m² with access from the street, and the application describes it adding one new private dwelling.
They refer to it as previously being B1, maybe there was a prior change of use, or maybe they hope it is more likely to be approved if changing from office rather than retail space. It’s also possible that the Cardiff-based agent just made a mistake.
Interesting, seems a shame to lose a shop front when the arcade is improving, particularly for such a small flat, but I suppose there isn’t anything objectively wrong about it.
Yes - I certainly don’t envy the planning department on deciding this one, but it does remind me of the old Lolo’s Patisserie application (DC/17/102874) to convert that to a tiny flat, in that case only 34m2. That was refused in 2017 with the following reason:
It took another 3 years before that site was occupied, but I think it was worth the wait to be come Forest Hill Bistro.
That new plant shop on Brockley Rise is looking good. Called Mmea (the Swahili for ‘plant’) it’s opening on May 29th.








